SANT MARTÍ D’ARAVÓ – AL LADO DE BOLVIR – JARDÍN Y PISCINA

  • RESERVADO
Sant Martí d'Aravó, Guils de Cerdanya, Cerdanya, Girona, Catalunya, 17520, España
Reservado CERDANYA - BCN - L'OBAGA
SANT MARTÍ D’ARAVÓ – AL LADO DE BOLVIR – JARDÍN Y PISCINA
Sant Martí d'Aravó, Guils de Cerdanya, Cerdanya, Girona, Catalunya, 17520, España
  • RESERVADO

Resumen

Referencia: 1768
  • Casa
  • Tipo
  • 4
  • Dormitorios
  • 3
  • Baños
  • 1
  • Parking
  • 143
  • m2

Descripción

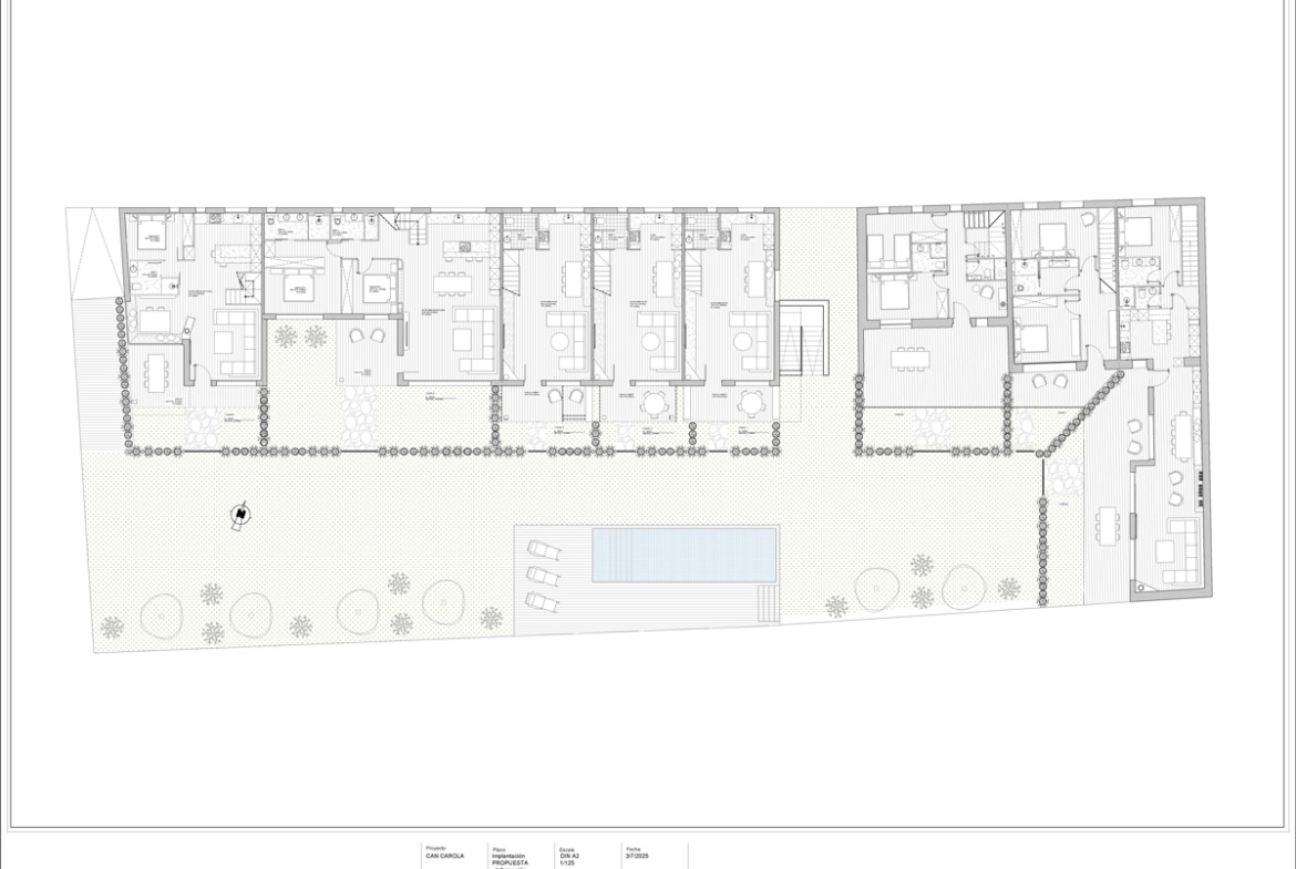
En una comunidad de 8 casas en Sant Martí d’Aravó, en un entorno privilegiado en la Cerdanya, a solo 5 minutos caminando de Puigcerdà y a 4 km de Bolvir.

Con jardines privados, comunitario y piscina.

Ubicada en el entorno único de un antiguo mas rehabilitado, junto al camino de la Iglesia del Remei (Bolvir), esta vivienda combina el encanto del entorno rural con las comodidades de una construcción moderna y eficiente.

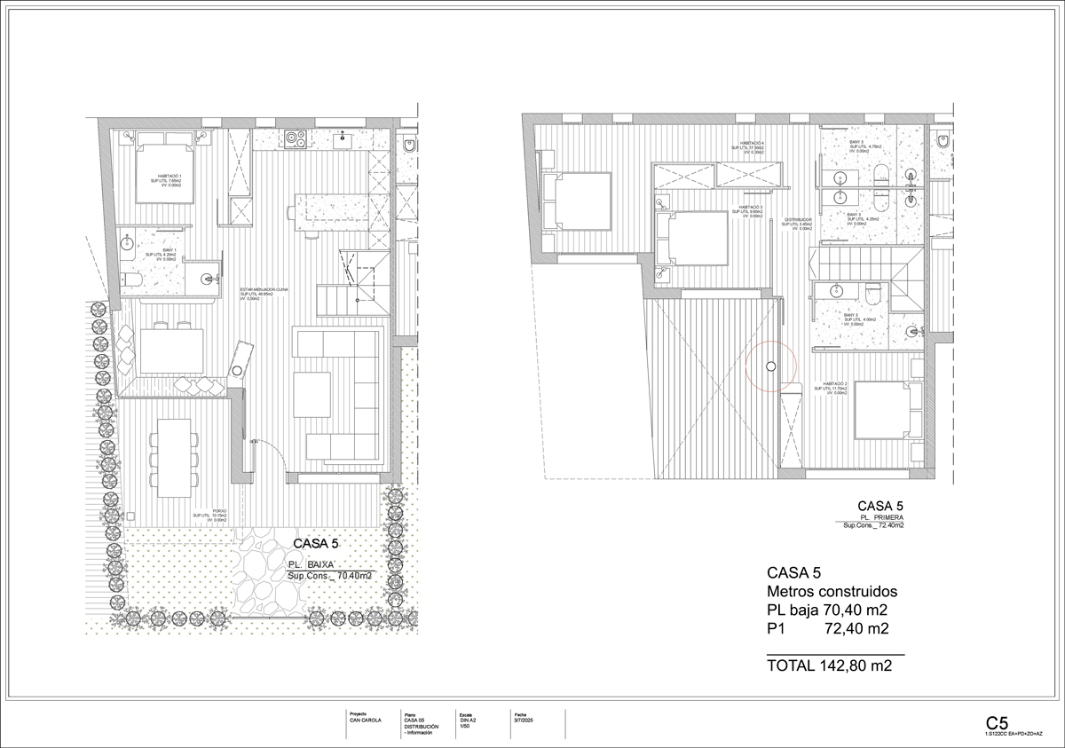
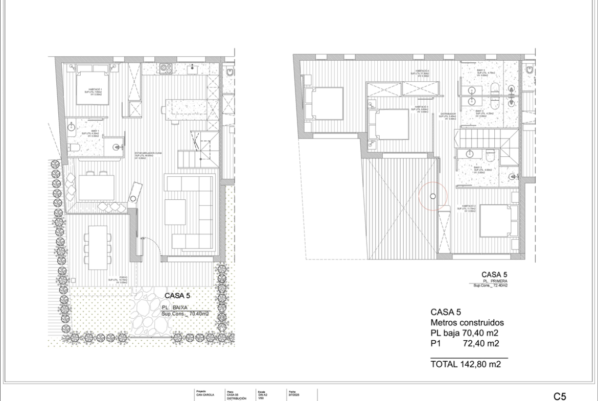
La vivienda se distribuye en planta baja y planta primera:

En planta baja: Un amplio salón con chimenea, comedor con cocina abierta tipo office, 1 habitación suite y 1 baño completo. Con salida directa al amplio porche privado.

En planta primera: Encontramos 3 habitaciones suite y  3 baños completos.

Cada vivienda cuenta con:

• Jardín privado

• Zonas ajardinadas comunitarias

• Piscina comunitaria

• Parquing box 

• Diseño sostenible e integración paisajística

• Materiales nobles y eficiencia energética (aerotermia, aislamiento avanzado, etc.)

Esta casa sostenible en la Cerdanya está pensada para disfrutar del entorno natural con el máximo confort, tanto en verano como en invierno.

Un enclave ideal para quienes buscan comprar casa cerca de Puigcerdà, con tranquilidad, vistas abiertas y fácil acceso a todos los servicios y actividades de la Cerdanya.

** Las imágenes, planos e infografías son orientativos, no vinculantes; mobiliario y decoración excluidos salvo memoria de calidades, sujeta a cambios.

  • Localidad Bolvir, Guils de Cerdanya, Puigcerdà, Sant Martí d'Aravó
  • Comarca Zona Girona - La Solana, Cerdanya
  • País España

Anuncios similares

Comparar listados

Comparar
Alex Ros
  • Alex Ros