BOLVIR, PRECIOSA CASA CON JARDÍN PRIVADO

  • A CONSULTAR
Bolvir, Cerdanya, Girona, Catalunya, 17539, España
En venta CERDANYA - GIRONA - LA SOLANA
BOLVIR, PRECIOSA CASA CON JARDÍN PRIVADO
Bolvir, Cerdanya, Girona, Catalunya, 17539, España
  • A CONSULTAR

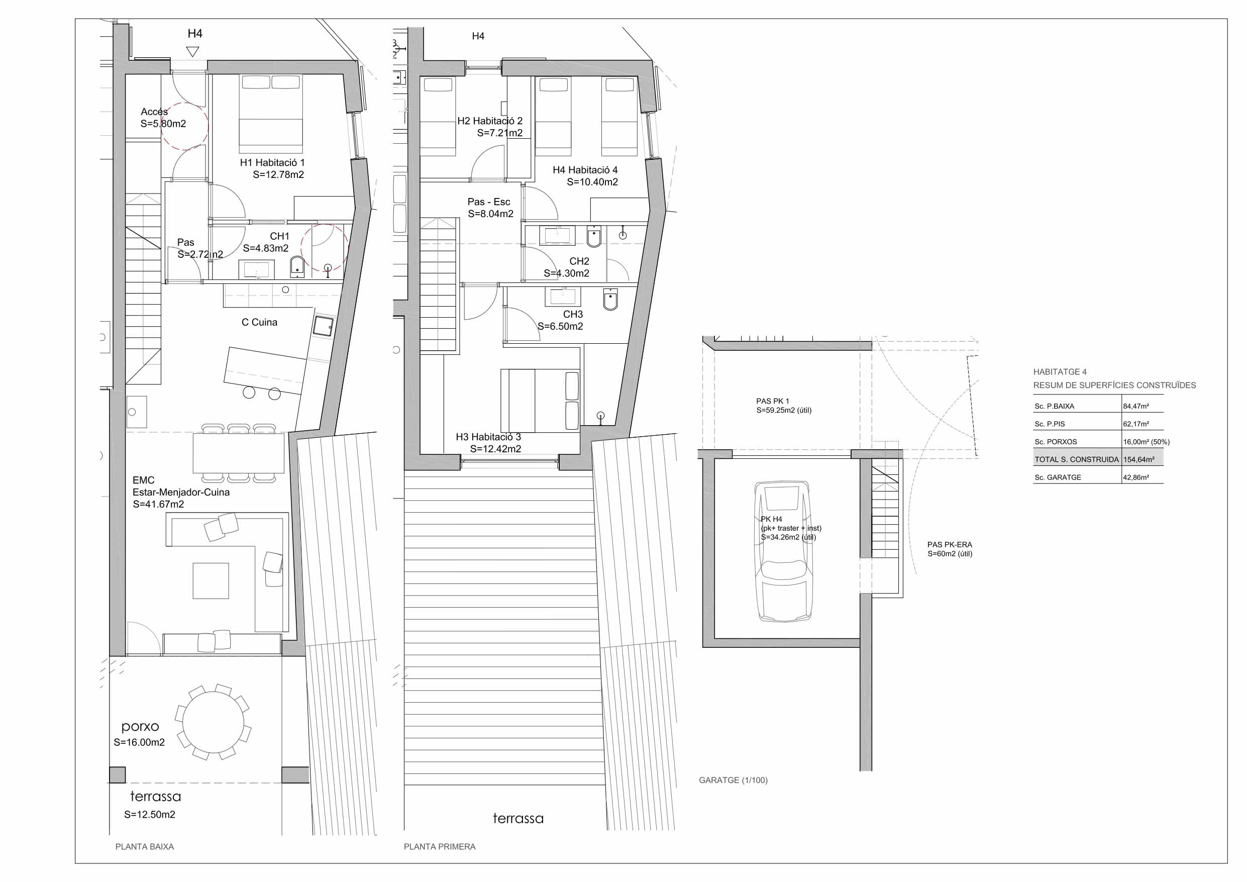
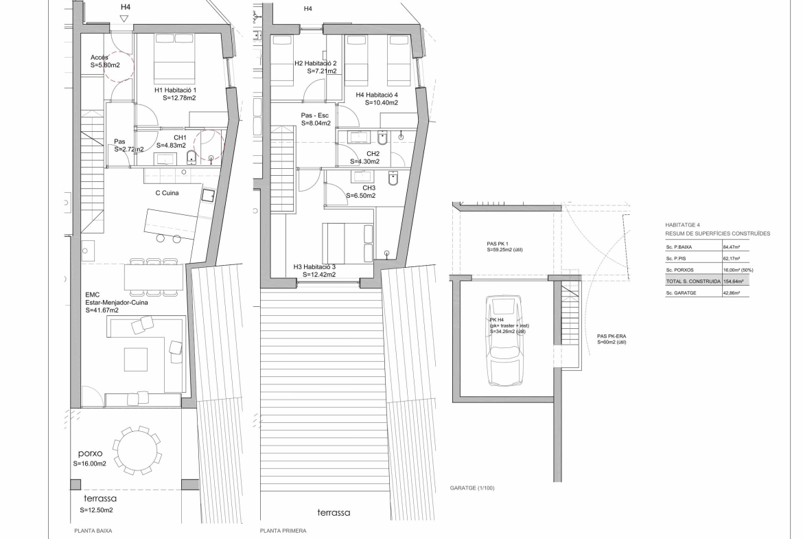
Resumen

Referencia: 1754
  • Casa
  • Tipo
  • 4
  • Dormitorios
  • 3
  • Baños
  • 1
  • Parking
  • 164
  • m2

Descripción

Ubicada en Bolvir, en tranquila zona residencial, en una pequeña comunidad de tan solo 4 casas.

Diseñada para ser tu refugio perfecto en la Cerdanya.

En planta, salón comedor con salida a jardín privado, que además da acceso a una zona de jardín comunitaria.

Chimenea ideal para los días de invierno.

Cocina de diseño abierta al salón.

Aseo.

En planta habitaciones, 3 habitaciones dobles, una de ellas suite, y un baño con ducha.

Salida a un balcón con vistas.

Precioso porche ideal para los soleados días de verano.

Parquing para un coche, con acceso directo a la vivienda.

Con acabados de diseño y las últimas novedades en climatización para realizar casas más sostenibles.

Si Bolvir es tu zona preferida, no dudes en pedir más información!

  • Localidad Bolvir
  • Comarca Cerdanya
  • País España

Comparar listados

Comparar
Alex Ros
  • Alex Ros